















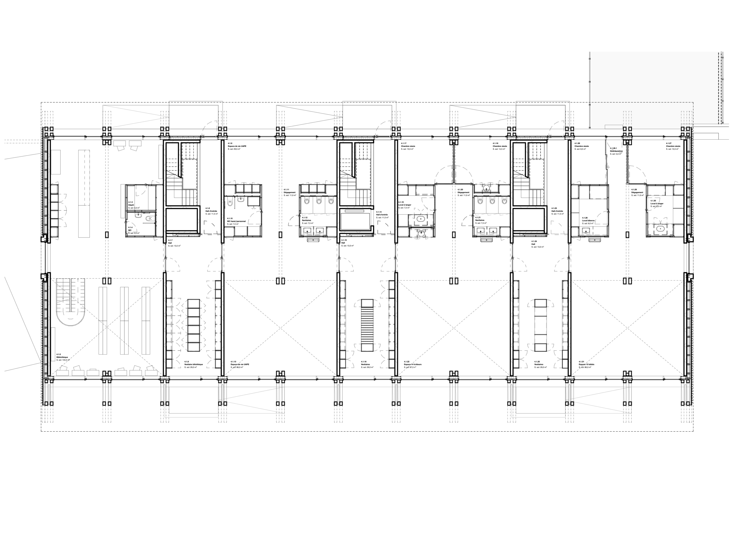
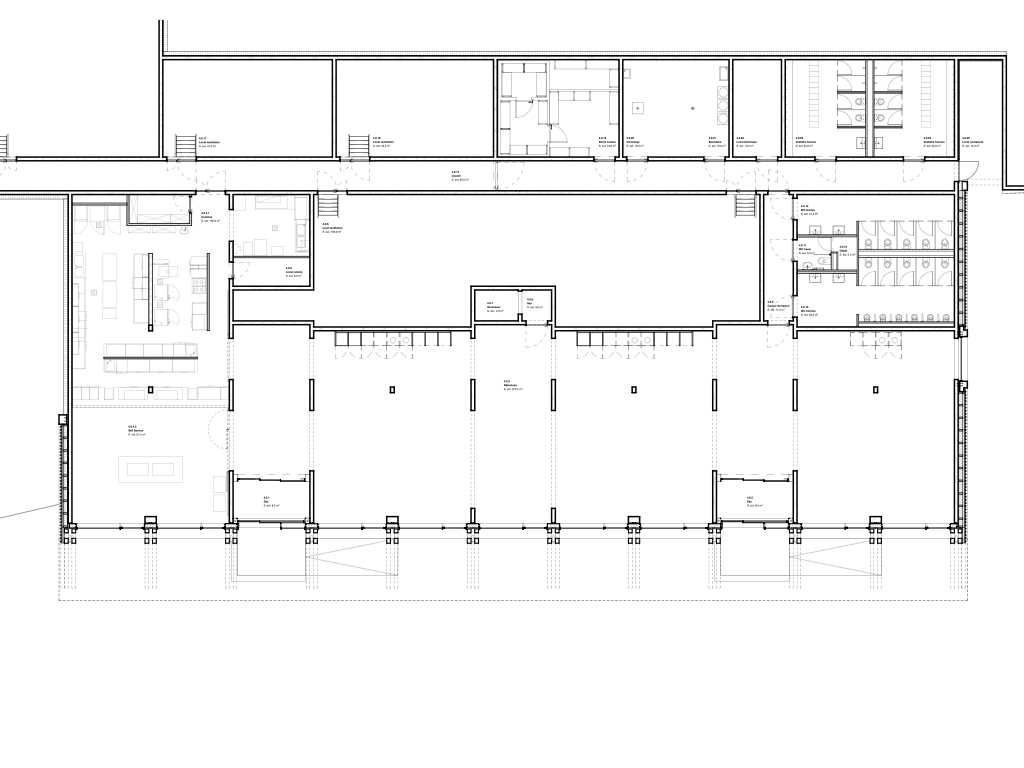
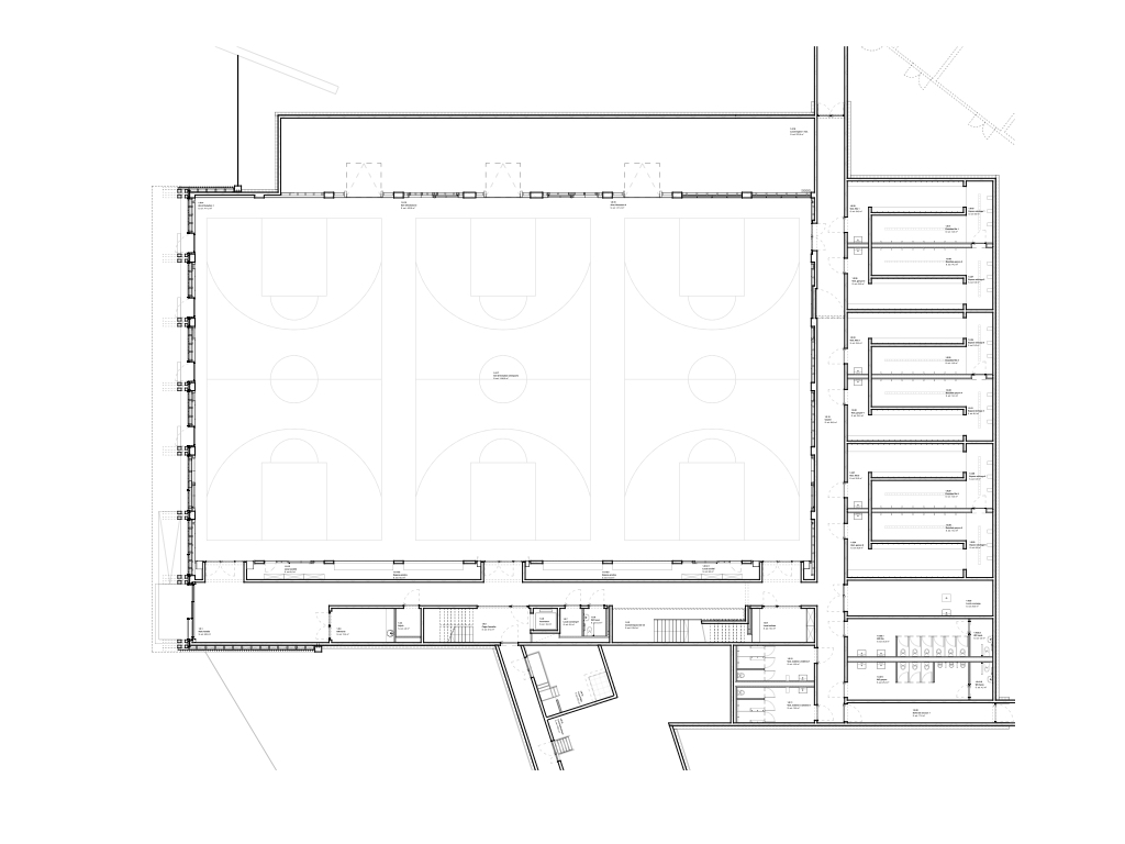
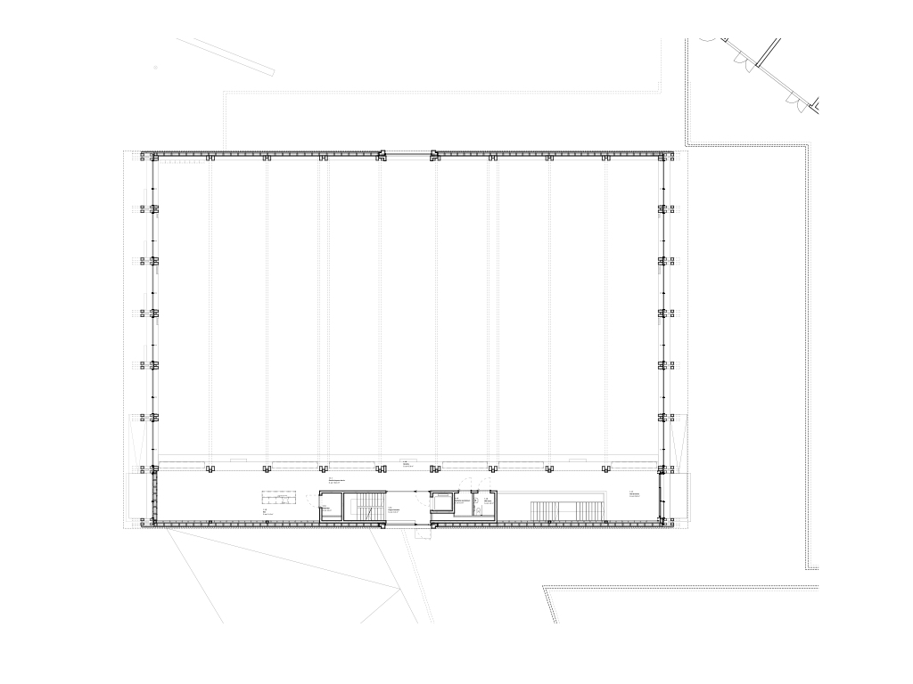
Centre scolaire Perrosalle, 1867 Ollon
La commune de Ollon
eido architectes sàrl
Collaborateurs : Diogo Dos Santos, Vanessa Delessert, Noémie Tschabold
Atelier d’architectes Joseph Cordonier sàrl, Lens
Nicod Ingénieurs civils
Ingénieur E, srg engineering, Lausanne
Ingénieur CV, srg engineering, Lausanne
Ingénieur S, , srg engineering, Lausanne
Concours ouvert à 1 degré
2017
Janvier 2017-en cours
2022-2024 (étape 1)
80’000’000 TTC, CFC 1 à 9 (toutes les étapes)
https://www.espazium.ch/fr/visite-college-perosalle-savioz-fabrizzi-architectes