Assainissement et agrandissement, EMS la Résidence des Épinettes
Concours ouvert à 2 degrés
1er rang / 1er prix
2024-en cours
Home pour 104 résidents
Bandeau équipe
Plan du rez-de-chaussée
Bandeau équipe
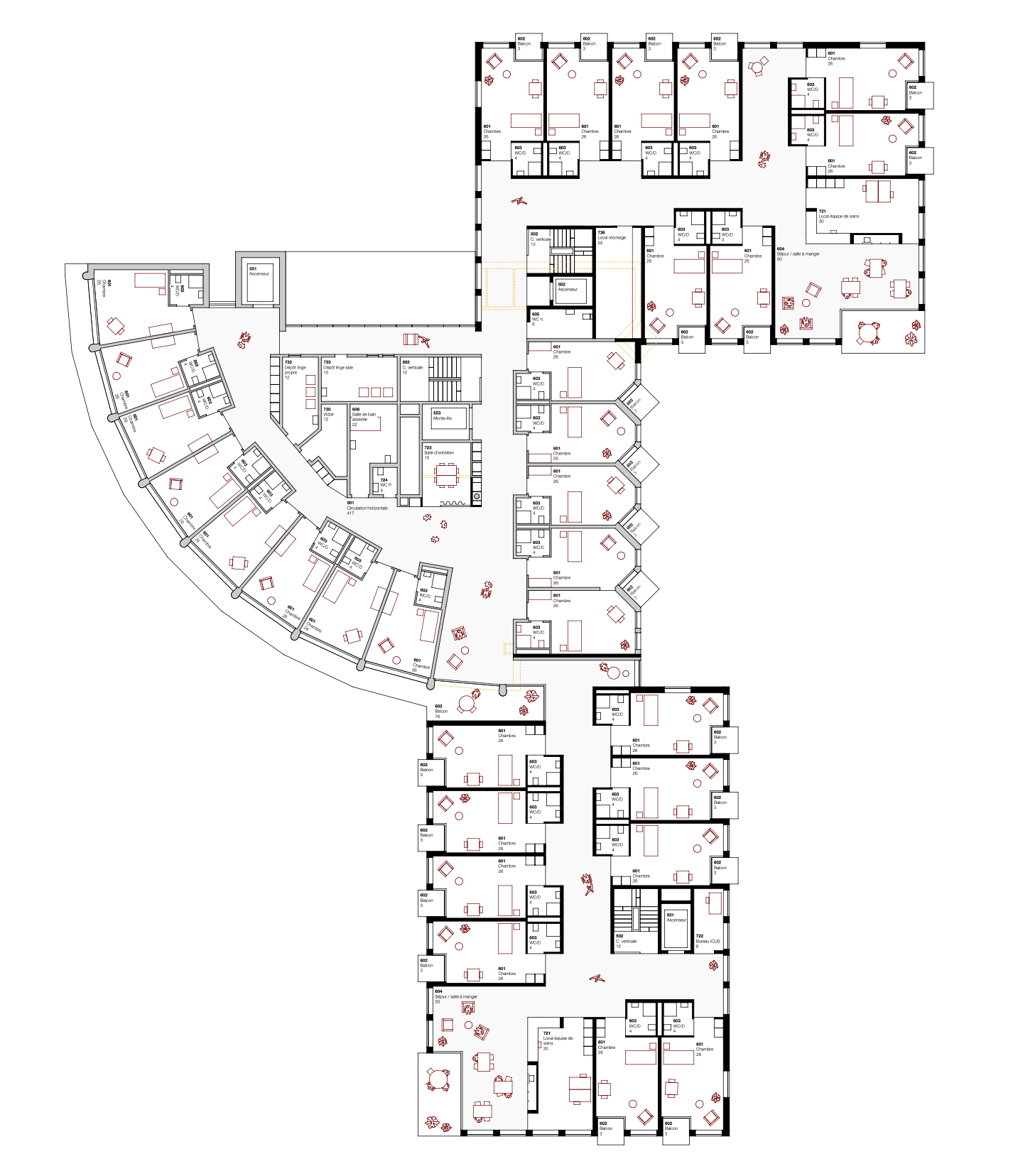
Plan d'étage
La proposition d’extension de la Résidence des Epinettes tisse de nouveaux liens avec le contexte environnant. L’agrandissement est découpé en deux ailes; la première au nord du site, proche de l’entrée, la seconde au sud, en direction du parc. Cette agrandissement en deux ailes permet de limité un impact important sur le parc.
Le plan résultant remet au centre le bâtiment existant qui regroupe les fonctions principales de l’institution. La typologie proposée met en place des espaces de vies à l’échelle du bâti et contient les distances de liaisons entre les différentes fonctions. Ce traitement valorise l’ensemble du volume et pas uniquement une extension nouvelle connectée au bâti existant. La résidence pourra ainsi grandir, évoluant comme un tout cohérent en dialogue avec son contexte proche.
La cour de récréation se développe dans le prolongement de la place du village, le long du chemin des Epinettes. Cette continuité permet de favoriser les échanges entre petits et grands. Les espaces sont pensées pour tous les âges et pour tout type d’activités. Les zones perméables sont favorisées afin d’éviter des îlots de chaleur. Des préaux couverts sont répartis sur l’ensemble de la cour afin de disperser les élèves. Des abris vélos sont répartis le long de du chemin des Epinettes, à proximité des entrées sur le site.
De petites interventions au niveau des gradins et de la géométrie sont apportées à la place du village. Une perméabilité entre la place et l’église est garantie vers l’est grâce à l’implantation en redents et la volumétrie basse et du nouveau bâtiment.