Agrandissement et modernisation de l’EMS les Baumettes à Renens VD
Concours ouvert à 1 degré
1er prix
2025 – en cours
Home pour 133 résidents et une crèche
Bandeau équipe
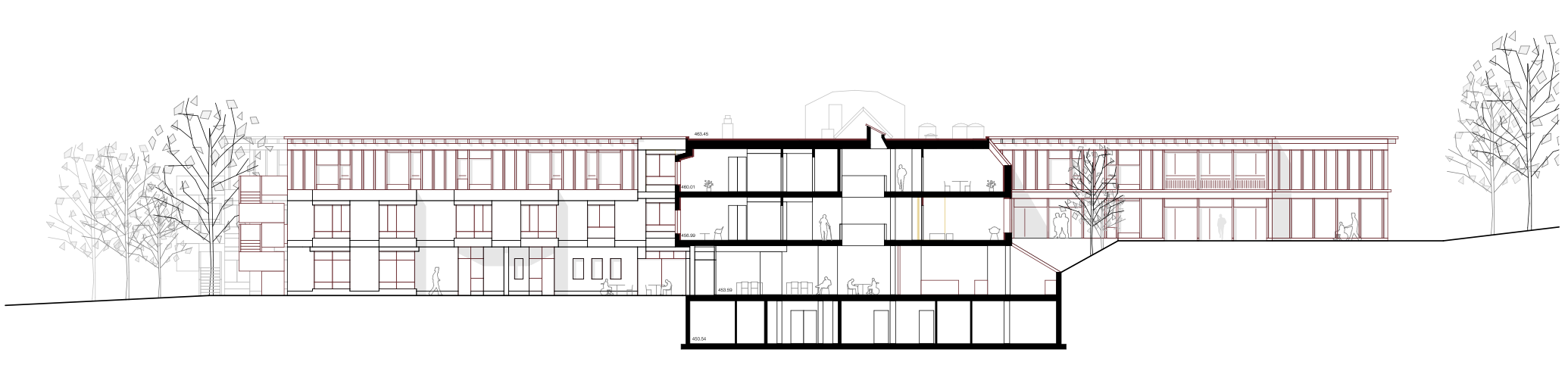
Façade/Coupe sud-est
Bandeau équipe
Plan rez-de-chaussée
Bandeau équipe
Plan 1er étage
Bandeau équipe
Façade/Coupe sud-ouest
La proposition morphologique des extension tiens compte du bâti existant et de son développement en peigne sur la parcelle. Cette volonté de prolongement ce maintient dans le caractère construit des nouveaux volumes proposés. La poursuite du caractère horizontal de l’ensemble poché d’un matériaux particulier est remis en scène. Cette lecture permet ainsi d’apporter un aspect commun et délicat à l’ensemble bâti.
Cette proposition ne tient pas à imité de manière simpliste la construction réalisée mais à en poursuivre les qualités afin de composer un ensemble cohérent et identifier comme une institution unique.