Baignade naturelle Les Mosses
Mandat pour l’exécution de l’ouvrage
2024 – en cours
Bandeau équipe
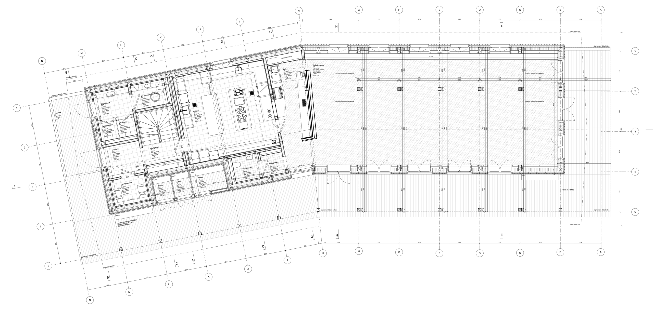
Plan du rez-de-chaussée
Bandeau équipe
Plan 1er étage
Image de projet
Image de projet
Bandeau équipe
Façade longitudinale
Image de projet
Image de projet