Extension transformation EMS les Glariers
Concours ouvert à un degré
1er prix
2019 – en cours
Extension home de 30 résidents
Bandeau équipe
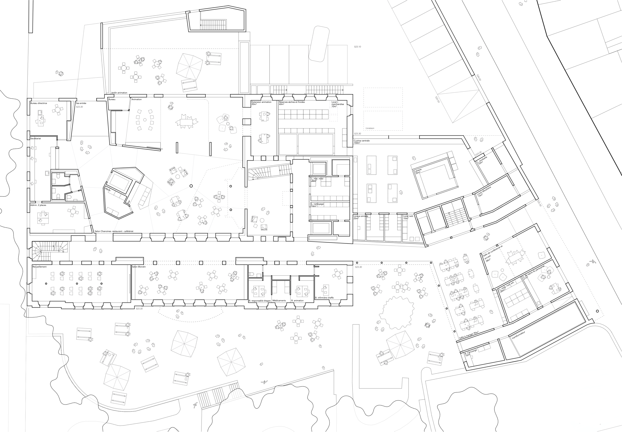
Plan du rez-de-chausée
Un jour ensoleillé, une déambulation tranquille, nous nous perdons au fil des ruelles que nous proposait le coeur de la ville. Remontant au long de la rue du Grand-Pont, découvrant l’activité frémissante de ce bourg bien vivant.

La rencontre avec le site d’étude se fit de manière discrète. Parcourant la rue de Savièse, nous découvrions au-delà d’un angle bâti ce nouvel espace de réflexion. Cette première vision du lieu marqua notre ressenti, notre imaginaire restant lié à ce moment. L’absence d’un relationnel au bourg de la ville de Sion allait ainsi devenir le moteur de la recherche architecturale.

Les demandes du maître d’ouvrage sont variées et complexes. La mise en oeuvre d’un programme conséquent mais nécessaire se traduit par la définition d’un volume traçant les premiers ressentis du lieu. La mise en place du nouveau volume le long de la rue de Savièse cherche la connexion à cette déambulation naturelle proposée par le bourg historique.

Cette disposition offre à l’institution une nouvelle facette orientée vers le public. Un nouvel accès s’inscrit dans la continuité de l’institution mais également dans celle du bourg historique de la ville. Le travail volumétrique propose une accroche formelle au jeu de toiture présent dans le bâti du vieux Sion. Cette définition laisse ainsi l’édifice existant évoluer de manière autonome comme le solitaire actuel.

L’emplacement de la nouvelle extension permet une construction facilitée de par son détachement au volume existant. Le sous-sol n’étant que peu impacté par les travaux, le home existant pourra continuer son activité durant la période des travaux sans difficulté majeure.

La construction de l’édifice se développe principalement en béton. Ce caractère minéral permet au volume de s’intégrer de manière sensible du contexte bâti du bourg de la ville de Sion. Les murs de séparation des chambres ainsi que la cage d’escalier serviront de renfort sismique pour le bâtiment. La composition des murs offre au bâtiment une grande capacité d’inertie et donc un confort intérieur accru pour l’ensemble des pensionnaires.