Concours ouvert à 2 degrés 1er rang / 1er prix 2024 – en cours 14 salles de classes, salles de gymnastique et salle de spectacle
La cour de récréation se développe dans le prolongement de la place du village, le long du chemin des Epinettes. Cette continuité permet de favoriser les échanges entre petits et grands. Les espaces sont pensées pour tous les âges et pour tout type d’activités. Les zones perméables sont favorisées afin d’éviter des îlots de chaleur. Des préaux couverts sont répartis sur l’ensemble de la cour afin de disperser les élèves. Des abris vélos sont répartis le long de du chemin des Epinettes, à proximité des entrées sur le site. De petites interventions au niveau des gradins et de la géométrie sont apportées à la place du village. Une perméabilité entre la place et l’église est garantie vers l’est grâce à l’implantation en redents et la volumétrie basse et du nouveau bâtiment. Le parc existant n’est que peut impacté par le projet. Il est en grande partie maintenu. Les espaces extérieurs de l’EMS s’orientent principalement sur celui-ci. Les cheminement et les places de jeux et d’activités apporte une certaine attractivité pour les résidents. La place d’accueil au nord peut certainement être appréciée par les résidents car elle représente un vrai lieu de passage avec une grande animation. Les différents couverts permettent d’apprécier les extérieurs tout en étant à l’abris.
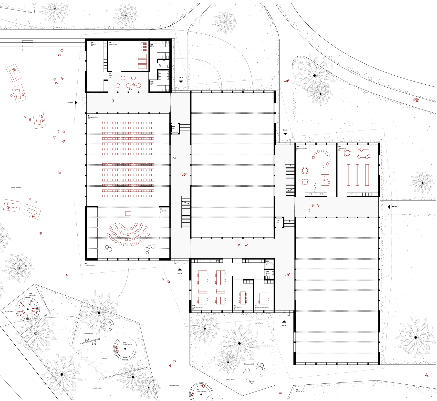
Le projet propose la mise place d’un volume à redent développé le long du chemin des Epinettes, de l’épuration du bâtiment scolaire existant et de l’ajout de deux ailes supplémentaires à l’EMS. De par sa morphologie, sa faible hauteur et sa toiture, le volume central se veut un activateur des espaces extérieurs, générant une interface unique avec ces derniers et le bâti environnant. Le programme public assume ainsi sa fonction première, se mettant au service de l’habitant et de l’espace qui l’entoure. Ce projet est alors le reflet de la vie quotidienne qui se construit autour du volume permettant à ses fonctions de vivre au travers des usagers et du lieu. Le programme scolaire trouve sa principale orientation le long du chemin des Epinettes, dialoguant ainsi avec la circulation et les bâtiments historiques du village de Marly. L’espace extérieur forme un premier seuil d’approche au bâtiment scolaire existant, rythme repris par la proposition bâtie proposée.