Transformation d’un rural à Vers-l’Église
Mandat privé
2022 – 2025
Bandeau équipe
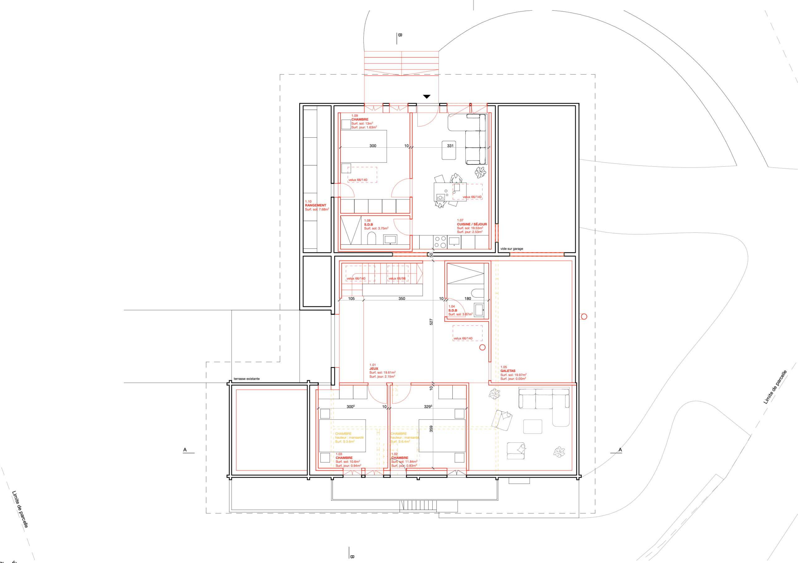
Plan rez supérieur
Image de projet
Image de projet
Bandeau équipe
Plan d'étage
Image de projet
Image expression de façade
Image de projet