Projets
Index
Notre équipe
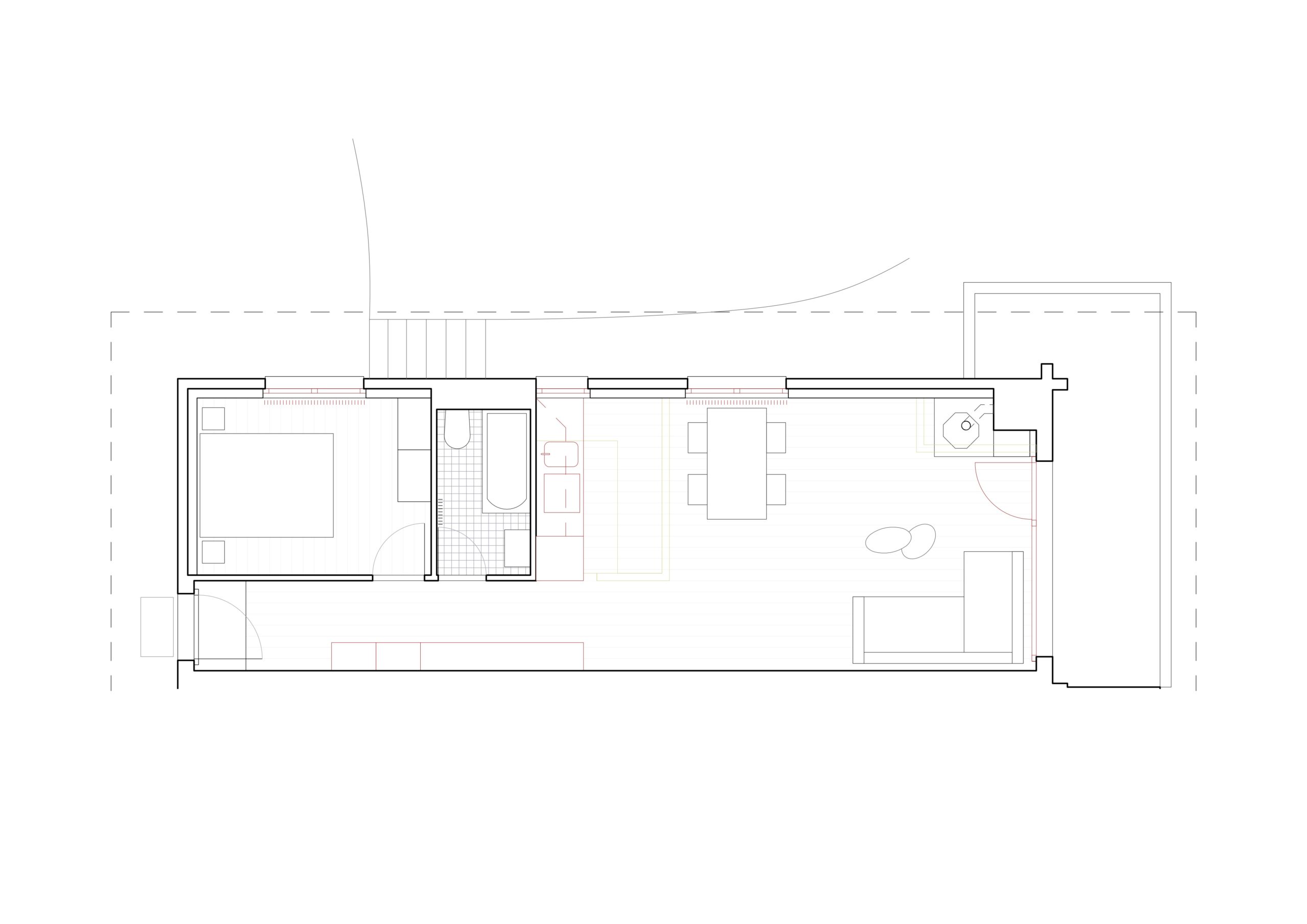
Rénovation d’un appartement au Diablerets
Mandat privé
2024 – 2025
+